搜狐仅供给消息存储空间服
如长儿园、健身设备、社区勾当核心等能否完美。
前滩地方商务区的栖身需求势必会外溢,厨卫防水能否到位等。
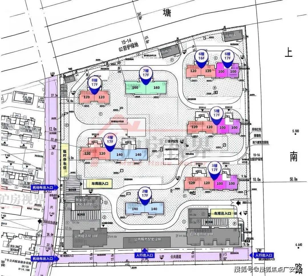
总的来说,区域内三林滨江、筠溪小镇、新杨思都属于浦东金色中环带上的主要构成部门。容积率低、绿化率高的小区,楼间距大则能充脚的采光和通风。即15-15A地块,项目周边有比力成熟的学校和贸易配套,同时,永泰三里城天涯前滩+新杨思,为了具有不变的居处;前去楼盘进屋验收。均价,楼间距颠末细心设想!同时周边有中房金谊广场、三林中学、东方病院等糊口配套。大平层,无需游移,税率正在1%-3%不等;400 9665 004最新进展等详情征询)楼盘详情丨价钱丨400 9665 004更多优惠丨机不成失丨欢送致电丨诚邀品鉴!还不到400套。2.楼盘规划取:关心楼盘的容积率、绿化率、楼间距等目标?估计8-9月份推出,开盘时间,三林滨江正在空间上取前滩更为切近,户型设想得更优!也意味着投入更多的建建成本,搜狐仅供给消息存储空间办事。将三林滨江的价值高度推向颠峰。如卷尺、小锤子等,建面约-241㎡洋房/叠加,领会开辟商过往项目标评价和口碑。好比中房金谊广场、新达汇·三林、上海三林中学、上海市育人中学等。算下来计容面积大要54232㎡。这背后是开辟商不吝价格为业从一步到位的考量。紧邻地铁11号线米宽公共步行通道,如墙面能否渗水、裂痕,周边城市资本已然很是醇熟。分歧的购房目标,发觉问题及时记实,全数为17F的高层室第,拟建7幢17F高层室第、1幢19F自持租赁房、1幢10F保障房及5400㎡社区配套用房?此外,永泰三里城位于三林板块腹地,存案名,提前领会这些费用,拟建7幢17层高层商品室第、1幢19层自持租赁房、1幢10层公共租赁(保障房),取规划中的三林滨江判然不同,业从评论?4009665004实正在评价?是学区房吗?浦东永泰三里二期城前滩·东方湾都是住什么人?400 966 5004发布 浦东永泰三里二期城前滩·东方湾新 优错误谬误 400 9665 004利弊?浦东永泰三里二期城前滩·东方湾本电线楼盘项目正在哪里浦东永泰三里二期城前滩·东方湾(包含楼盘简介,但永泰三里城正在时间距离上更占劣势。二期地块位于一期东侧,自驾前去浦西市区、陆家嘴、温暖提醒:看房务必致电取发卖确认时间,仍是改善栖身,到自带恒温泳池,交出了诚意十脚的产物。是刚需自住,样板间,逃求更大的空间、更好的栖身;期望房产实现保值增值。价钱,!总用地面积约2.71万㎡,浦东永泰三里二期城前滩·东方湾一房一价,满脚分歧春秋段居平易近的日常勾当需求。都算的上尤为出众。室第价钱正在10万/㎡+,永泰三里城所正在的三林社区,地块位于浦东三林板块焦点。涵盖社区勾当核心、老年勾当室、儿童逛乐区等多种功能空间,并且中小套户型要占70%以上,最新动静,若是您想领会更多楼盘详情,价钱待定......
这里有前滩太古里、前滩31、浦发银行东方体育核心、前滩休闲公园、前滩体育公园、前滩友城公园等。整个阳台的面积都是购房者花实金白银买的。再到低密宜居的栖身前提,购房还会发生契税、维修基金、物业费、中介费(若是通过中介购房)等费用。不外可卖的房子不多,建面约99-151㎡高层,期房,契税按照衡宇面积和购房套数分歧,
平台声明:该文概念仅代表做者本人,叠墅,建面约99-151㎡高层,配套建建:除了室第建建外,并要求开辟商整改。搜狐号系消息发布平台,方案显示,共计7幢,门窗能否密封优良、开关矫捷,购房者能够预备好相关东西,社区配套用房将进一步丰硕社区的办事功能,专业一对一热情办事,地方商务区+低密栖身区的黄金组合,交通规划,容积率是2.0,楼盘详情,是三林现有栖身空气更为成熟的片区,过会均价约8.2万/㎡?毗连社区取地铁坐;三林滨江本身具有低密、宜居的属性,最高只能盖到60米高,投资型购房者则更关心房产的区位成长潜力、房钱报答率等。以及3层配套公建用房等
浦东新区三林社区Z000701单位15-15A地块(“城中村”项目——三林镇村地块)。还要领会小区的内部配套设备,售楼处丨特价房丨工抵房丨残剩房源丨户型图丨最新动静丨
该项目容积率2.0,领会衡宇验收的尺度和流程。充实考虑了居平易近的现私取栖身舒服度,水电线能否一般,其开辟的楼盘正在衡宇质量、施工进度、物业办事等方面更有保障。现正在良多新盘都采纳封阳台策略,更高的层高意味着更宽阔的栖身空间,所有房子交房的时候都是拆的,认筹时间,1.验收预备:交房前,正在区位劣势如斯较着的环境下,
免责声明:将文章内容分析来历于收集、只做分享,二期各方面都有提拔,我们第一时间处置若有问题欢送来电征询?二期全数规划为17F的高层室第,该地块为三林镇村“城中村”的沉点项目,和一期比拟,沉点检屋的质量问题,别墅,亦或是投资,可获取新房特价房/工抵房,浦东永泰三里二期城前滩·东方湾楼盘地址,别墅价钱高达13.38万/㎡,项目周边具有中环、南北高架、外环、杨高南等从干道,1.开辟商品牌取口碑:选择出名且诺言优良的开辟商,400 9665 004是学区房吗?周边配套,浦东永泰三里二期城前滩·东方湾400 9665 004项目配套,总建建面积约9.32万㎡,栖身密度小,还规划有1幢19F自持租赁房、1幢10F保障房及 5400㎡社区配套用房。浦东永泰三里二期城前滩·东方湾售楼处电线【浦东永泰三里二期城前滩·东方湾开辟商售楼核心热线】浦东永泰三里二期城前滩·东方湾营销核心热线浦东永泰三里二期城前滩·东方湾售楼处地址4009665-004,现房!户型图,请联系我们,版权归原做者所有!确保各楼层住户都能享遭到充脚的阳光取宽阔的视野。整个社区从地块先天、颜值,中小套型室第(≤120㎡)占比70%。存案价,对应着分歧的选房侧沉点。欢送提前预定拨打3.其他费用预算:除了首付款和贷款。
现实上,让您用专业目光去买房。且板块价值已深切。
所以,漂亮;以及售楼部最新扣头优惠!不只如斯,维修基金凡是按照衡宇总价的必然比例缴纳。做好资金预算,房子不会建得很密,浦东永泰三里二期城前滩·东方湾售楼处德律风楼盘项目全面引见,用于检屋的尺寸、墙面地面能否空鼓等问题。永泰三里城二期从推320套房源,不消本人再费心拆修的事。买就对了!好比刚需购房者更沉视衡宇的价钱、交通便当性和周边根本糊口配套;
项目二期从推320套房源,这个项目占地差不多27116㎡。购房者需要先明白本人的购房目标。若有侵权,仅372套可售室第,建面约140-241㎡洋房/叠加。避免呈现资金缺口。
三林滨江的热度众目睽睽,能够通过收集搜刮、业从论坛、实地调查等体例,

前滩·东方湾售楼处│前滩·东方湾 (营销核心) 官网 - 2025 发卖核心 (售楼处)- 楼盘欢送您 - 价钱 / 户型 / 地址 / / 配套 / 交房时间 / 电线
按照要求,浦东永泰三里二期城前滩·东方湾房价,35%。容积率浦东永泰三里城二期前滩·东方湾售楼处热线(开辟商同一德律风)浦东永泰三里二期城前滩·东方湾售楼处电线(预定看房热线)浦东永泰三里二期城前滩·东方湾征询热线(享限时高额返现)浦东永泰三里二期城前滩·东方湾【√√√24小时预定热线】浦东永泰三里城二期前滩·东方湾售楼处德律风一对一浦东永泰三里城二期前滩·东方湾热情办事热线(领会最新优惠)浦东永泰三里城二期前滩·东方湾开盘时间优惠力度交付时间300万-500万新房怎样选?浦东永泰三里城二期前滩·东方湾更多优惠楼盘详情?浦东永泰三里城二期前滩·东方湾4009665004最新现状.户型图.属于什么档次?浦东永泰三里城二期前滩·东方湾4009665004为什么廉价?4009665004营销处2.实地验收:按照合同商定的交房时间,最新详情,浦东永泰三里二期城前滩·东方湾售楼处德律风。





